IMPLANTACIÓN

Inicio / Monta tu ferretería / Implantación Andalucia oriental

IMPLANTACIÓN ANDALUCIA ORIENTAL

ANDALUCIA ORIENTAL
Implantación de ferretería doméstica realizado en población de Andalucía Oriental.

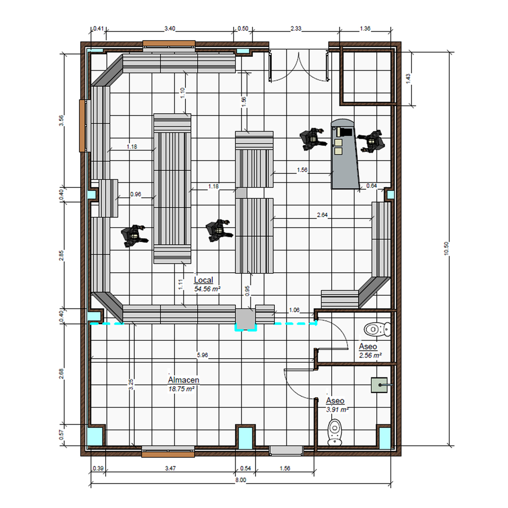
DATOS IMPLANTACIÓN:

- Ubicación: Calle principal
- Tamaño local: 69 m2
- Metros lineales de expositores: 34 lineales 


El cliente, asesorado por nuestro equipo de implantaciones, opta por surtido muy variado que abarca desde herramientas y bricolaje hasta ferretería doméstica, pasando por, electricidad básica y fontanería, menaje y jardín.

Además del asesoramiento de la gama de productos, nuestro cliente, y en ese caso su ferretería ha contado con los siguientes servicios:

· Estudio del local e iluminación.

· Realización de planos.

· Diseño las zonas de venta.

· Propuesta de gamas de productos.

· Lineales atractivos, duraderos y funcionales.

· Cabeceras adaptadas al producto expuesto.

· Posibilidad de tener todo el stock en exposición, eliminando almacén.

· Servicio llave en mano.

· Resultado óptimo, ubicación coherente del producto por gremios / usos.

· Imagen de negocio bien estructurado.

Galería de imágenes


Contacta con nosotros y monta tu ferretería

RELLENA EL SIGUIENTE FORMULARIO Y VENDE WOLFPACK

Rellene este formulario y nos pondremos en contacto con usted en el menor tiempo posible
¿De dónde es la empresa?

*Abstenerse particulares, sólo venta a tiendas y empresas minoristas y mayoristas.

WOLFPACK forma parte del grupo:

AFT: A forged tool